羽生市西3丁目売地
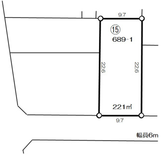
徒歩23分の場所に羽生市立羽生南小学校があります。土地面積は221㎡でイチオシ。こちらの住宅用地は周囲も充実しており、これから新しい住まいをお考えの方はいかがでしょうか。住環境の整っている東武伊勢崎線羽生周辺で不動産をお探しなら、地域密着の当社にぜひお任せください。お問い合わせはsjjc@sjjc.co.jpまでよろしくお願いします。
-
ローンシミュレーションこの物件を購入した場合の、月々の支払い価格の一例です。借り入れを保証するものではございません。
- 返済期間
-
- 金利
-
- ボーナス時の増額(1回分)
-
- 借入金額:
-
- 頭金:
-

- 毎月の返済額:
(※元利均等方式 金利5.00%まで ※返済年数5~50年まで入力できます)
(※ボーナスは年2回で計算しています。1000万円まで入力できます)
(※物件購入時、その他諸費用が発生する場合がございます)
情報の見方担当者のコメント 海沼宏昌

- 徒歩23分の場所に羽生市立羽生南小学校があります。こちらの土地は前面道路6m以上です。土地面積は221㎡となっております。駅から徒歩10分圏内に立地しています。048-525-2233までお問い合わせをお待ちしております。羽生市にある東武伊勢崎線羽生周辺の土地情報をいつでも紹介致します。
ポイント・特徴
物件概要
【売地】 物件番号:101376960 情報更新日:2026年03月03日 次回更新予定日:2026年03月17日所在地 埼玉県羽生市西3丁目689 交通 価格 1,650万円 土地の敷金/保証金 -/- 借地料/借地期間 -/- 土地面積(坪数) 221.00㎡(66.85坪) 坪単価 24.68万円 私道負担面積/セットバック -/無 高圧線下面積 - 傾斜地部分面積 - 路地状敷地 - 土地権利 所有権 接道状況 一方(南 公道 6.0m 間口 9.7m) 都市計画 市街化区域 用途地域 第二種住居 建築条件 - 地目/地勢 田/- 建ぺい率 60% 容積率 200% 総区画数 - 販売区画数 - 国土法届出要否 不要 その他の法令上の制限 - 取引態様 売主 現況 更地 引渡時期 相談 引渡条件 更地渡 最適用途 住宅用地 物件番号 101376960 取引条件の有効期限 2026年03月17日 設備条件 - プロパンガス
- 公営水道
- 公共下水
備考 こだわりポイント満載の羽生市西3丁目売地。徒歩23分の場所に羽生市立羽生南小学校があります。住宅用地なので、周辺環境が新しい住まいを建てるのに適しています。羽生市エリアで土地をお探しなら、当社のお勧めは東武伊勢崎線羽生周辺でございます。土地に関することなら、埼玉住宅情報センターまでお問い合わせくださいませ。 取扱会社 - 株式会社埼玉住宅情報センター
- 埼玉県熊谷市筑波2丁目66-1
- TEL:048-525-2233
- 埼玉県知事 (12) 第9814号
建設業許可 埼玉県知事許可(般-22)第47952号
- (公社)埼玉県宅地建物取引業協会
(一社)全国賃貸不動産管理業協会
全国賃貸管理ビジネス協会
※地図上に表示される物件の位置は付近住所に所在することを表すものであり、実際の物件所在地とは異なる場合がございます。
物件お問い合わせ
















