タニダコーポ 2階
室内設備は追い焚き・エアコン2台など充実した設備を備え付けています。現在空き室のこのお部屋、案内も入居もすぐに行うことができます。角部屋は他の住戸との接地面が少ないため、お互いの生活音による隣人トラブルを防止できます。南向きのアパートです。当社は、多種多様な賃貸情報を取り扱っております。スタッフ一同、快適な住まいをご提供いただけるよう、全力で努めてまいりますので、ぜひ当社にお任せ下さい。
- 賃料
- 6.9万円
- 間取り
- 2DK
- 専有面積
- 58.64㎡
- 所在階
- 2階
- 管理費・共益費
- -
- 敷金
- 1ヶ月
- 礼金
- 1ヶ月
初期費用シミュレーションこの物件を借りた場合の初期費用の一例です。
- 賃料
- 管理費・共益費
- 敷金:
- 礼金
- 前家賃(日割り) ※1
-
- 前家賃(日割り)
- 仲介手数料 ※2
- その他費用 ※3
- 合計
※1. 1か月を30日として計算しています。
※2. 仲介手数料は仮の価格となりますので、実際の価格に関してはお気軽にお問い合わせ下さい。
※3. その他費用の項目は、保険料、初回保証料になります。
担当者のコメント 中林知子

- この物件は洗面所が独立しており、使い勝手も良好です。通風良好で常に新鮮な空気を送り込むアパートをご案内します。こだわりの条件の中でもニーズの高い、二人入居可能物件。プライバシーを気にしている方も角部屋なので安心です。住みやすい環境が嬉しい賃貸物件です。多種多様な賃貸情報を扱う埼玉住宅情報センターなら、お客様に合ったお住まいがきっと見つかります。お電話048-525-2233からご連絡お待ちしております。
ポイント・特徴
物件概要
【アパート】 物件番号:26563687 情報更新日:2026年03月03日 次回更新予定日:2026年03月17日| 所在地 | 埼玉県熊谷市宮町1丁目 | ||
|---|---|---|---|
| 交通 | |||
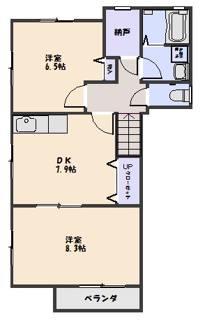
| 間取り/詳細 |
2DK 洋室 6.5帖/洋室 8.3帖/DK 7.9帖 |
面積/バルコニー面積 | 58.64㎡/- |
| 賃料 | 6.9万円 | 管理費・共益費 | - |
| 敷金/礼金/保証金 | 1ヶ月/1ヶ月/- | 償却/敷引 | -/- |
| 更新料/更新事務手数料 | 1ヶ月/1.8975万円 | 敷金積み増し | - |
| 権利金/雑費 | -/- | 駐車場/月額料金 | 空有/0円 |
| 保険加入/料金 | 有/18,000円 | 保険名/保険期間 | -/2年 |
| 保証人代行義務/利用料 | 必加入/ 初回保証料は総額家賃50%、2年目からは毎年1万円 | 保証会社 | 日本賃貸保証 |
| 保証会社詳細 | - | 向き | 南 |
| 築年月(築年数) | 2004年 1月 (築22年) | 契約期間 | 2年 |
| 種別/構造 | アパート/鉄骨造 | 部屋/所在階/階建 | 201/ 2階/ 2階建 |
| 総戸数 | - | 現況/入居可能日 | 空家/即時 |
| 特優賃 | - | 取引態様/賃貸区分 | 一般媒介/一般 |
| 物件番号 | 26563687 | 取引条件の有効期限 | 2026年03月17日 |
| 設備条件 |
|
||
| 備考 | 室内設備は追い焚き・エアコン2台など豊富に揃っており、過ごしやすいお部屋になっております。角部屋になっております。新しい日々を送るにふさわしい、きれいな室内です。駐車場に空きがあるので車を所有している方も安心です。住まい探しの際には、実際に住んでみた時のことを想像しながら進めていくことが大事です。より良い住まいをご提供致します。 | ||
| 条件(その他) | 初回保証料:3万4,500円 | ||
| 取扱会社 |
|
||
※地図上に表示される物件の位置は付近住所に所在することを表すものであり、実際の物件所在地とは異なる場合がございます。





















